Active 7

60 m² + 60 m²

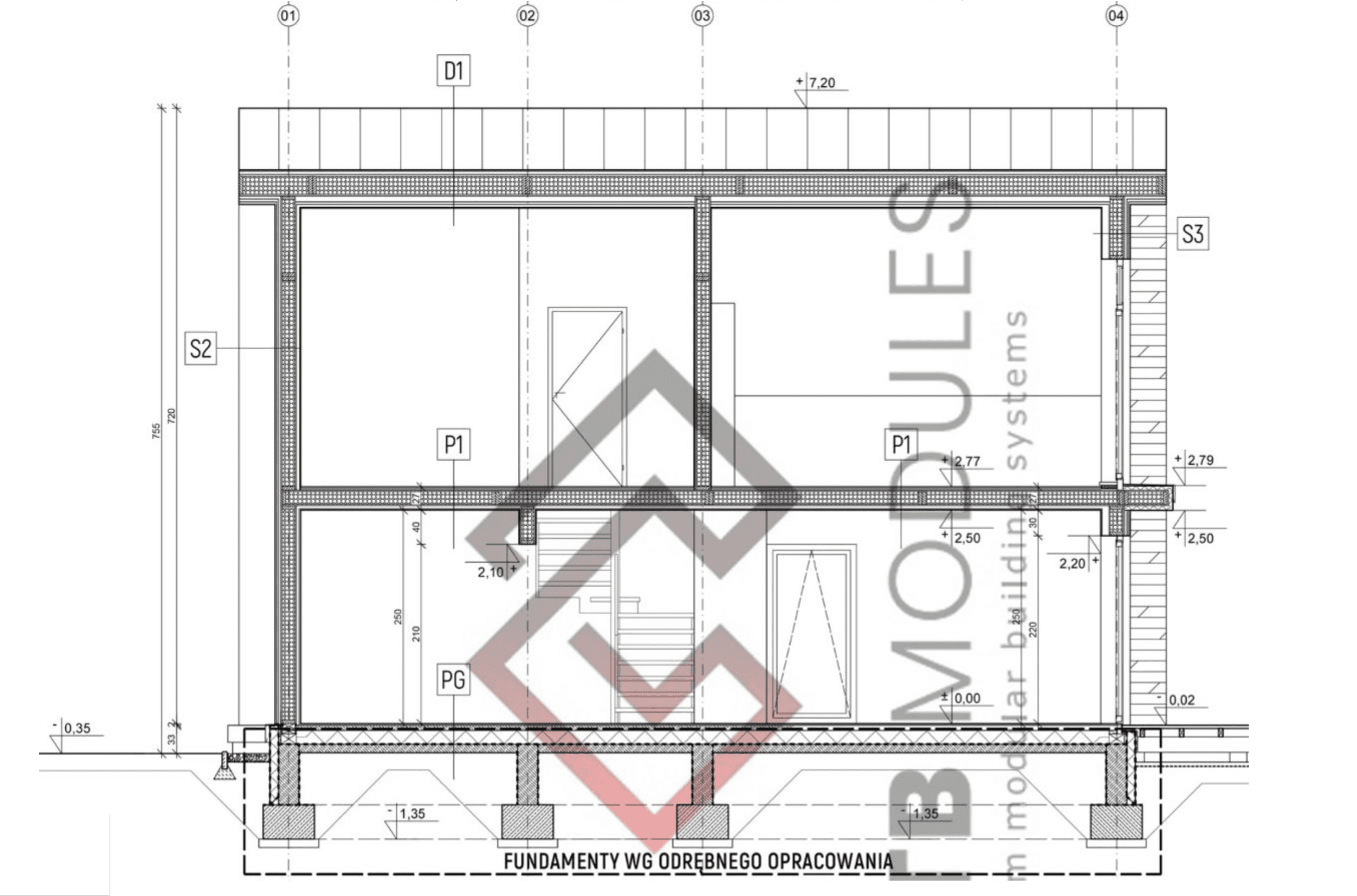
Wysokość w kalenicy to aż 7,13 m, dzięki czemu na parterze uzyskujemy optymalną wysokość 250 cm. Pozwala ona na komfortowe użytkowanie domu, jest idealna i nie przytłacza.

  • Szerokość i długość całkowita wynosi 6,3m/10,8m.

  • Dzięki przemyślanemu zagospodarowaniu powierzchni parteru uzyskujemy miejsce na urządzenie komfortowej łazienki, doświetlonej oknem o wymiarach 117 cm wysokości x 60 cm szerokości. Jest ono trzyszybowe, PCV, z możliwością otwierania i uchylania. Z zewnątrz w kolorze elewacji – antracyt, wewnątrz w kolorze białym. Okno montowane na taśmę rozprężną.

  • Sercem domu jest obszerny salon, docelowo z aneksem kuchennym i oddzielonym ścianą wiatrołapem.
    Model wyposażony został w drzwi wejściowe, antywłamaniowe, ergonomicznej szerokości 90 cm. Zapewniają one komfortowe użytkowanie. Wykonane z wysokiej klasy materiału. Są ciężkie i ciche.

  • Duże, na niemal całą ścianę okna balkonowe, budzą ogromny zachwyt w naszych modelach. Trzyszybowe, PCV o wysokości 220cm i szerokości 109 cm. Trzy części są stałe, jedna z możliwością uchylenia oraz otwarcia. Montowane również na taśmę rozprężną. W tym modelu salon wyposażony został w dodatkowe okno.

  • Na pierwszym piętrze domu wydzielone zostało miejsce na trzy pomieszczenia. Dwie sypialnie i łazienkę.
    Mniejszą sypialnię doświetlają dwa okna dachowe o wymiarach 68 cm x 118 cm, które wprowadzają wystarczającą ilość promieni słonecznych. Oba z możliwością otwierania i uchylania.

  • W łazience poza oknem dachowym, znajduje się duże okno szczytowe o wymiarach 206×110 cm.

  • Głównym elementem dużej sypialni są cztery okna szczytowe. Dwa z nich o wymiarach 328×109 cm, a dwa 204×109 garderobianą.
    Wszystkie okna są trzyszybowe, PCV, montowane na taśmę rozprężną, nie na pianę jak dawniej.

  • Kąt nachylenia dachu to aż 45 stopni, ale w połączeniu z wysokością pierwszego pięta wynoszącą 395 cm pozwala na komfortowe użytkowanie.

  • Konstrukcja domu opiera się na markowym, skandynawskim drewnie certyfikowanym C24. Nie wymaga ono impregnacji.

  • Panele SIP stanowią elementy ścian zewnętrznych, działowych, podłogi antresoli i dachu.

  • Warstwa ocieplenia :
    EPS 80 – 15 cm
    Parametr U 0,23
    Docieplenie ścian zewnętrznych podwójną warstwą wełny 3,5 cm
    Docieplaniem zewnętrznym (w ruszcie pod elewacją) uzyskujemy parametr ścian U 0,18, natomiast dachu U 0,15.

  • Elewacja domu wykonana została częściowo z drewna (świerk) oraz blachy marki Budmat Iron Click „na rąbek”, w kolorze RAL 7016 – antracyt mat.